Welcome To Steel D link
Welcome To Steel D link
Welcome To Steel D link

Structural 2d Cad Detailing Drafting Services

Get a Free Enquiry

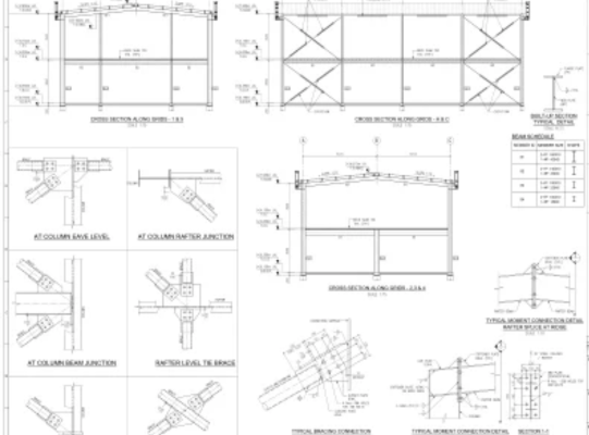
Moment Connection Structural 2d Cad Detailing Drafting Services

Structural 2d Cad Detailing Drafting Services

At Steel Dlink, we pride ourselves on delivering precise structural 2D CAD detailing, structural 2D CAD drafting, and comprehensive steel drafting services. Our expertise ensures that every detail of your project is meticulously planned and executed, supporting seamless workflows and high-quality results.

Structural 2D CAD Detailing for Accurate Designs

Structural 2D CAD detailing is the foundation of accurate construction and fabrication. At Steel Dlink, we create detailed and precise CAD drawings to ensure that every element of your structural design is clear, coordinated, and ready for implementation

Structural 2D CAD Detailing and Drafting

At Steel Dlink, we pride ourselves on delivering precise structural 2D CAD detailing, structural 2D CAD drafting, and comprehensive steel drafting services. Our expertise ensures that every detail of your project is meticulously planned and executed, supporting seamless workflows and high-quality results.

Structural 2D CAD Detailing for Accurate Designs

Structural 2D CAD detailing is the foundation of accurate construction and fabrication. At Steel Dlink, we create detailed and precise CAD drawings to ensure that every element of your structural design is clear, coordinated, and ready for implementation.

Comprehensive Structural 2D CAD Drafting

Our structural 2D CAD drafting services cater to a wide range of projects, providing clear and concise blueprints for construction and manufacturing. These detailed drafts include essential specifications, dimensions, and material requirements, helping you achieve precision and efficiency in your projects.

Steel Drafting Services for Seamless Fabrication

Steel Dlink specializes in professional steel drafting services that streamline the fabrication and assembly process. Our detailed drafting ensures that every steel component is accurately represented, minimizing errors and maximizing efficiency during construction.

Why Choose Steel Dlink?

• Precision and Accuracy: Our structural 2D CAD detailing and structural 2D CAD drafting services ensure every project is executed flawlessly.

• Expert Team: Our experienced professionals excel in delivering high-quality steel drafting services tailored to your project’s needs.

• Comprehensive Solutions: From detailed drafts to fabrication-ready plans, we provide end-to-end solutions for all your structural and steel drafting requirements.

• Cost Efficiency: Accurate detailing and drafting help reduce waste, save time, and control costs effectively.

Applications of Our Services

Our structural 2D CAD detailing, structural 2D CAD drafting, and steel drafting services are essential for a variety of industries, including:

• Commercial construction

• Industrial facilities

• Residential projects

• Infrastructure developments

If you’re looking for reliable structural 2D CAD detailing, professional structural 2D CAD drafting, or precise steel drafting services, Steel Dlink is your trusted partner.

Reach out to us today to discuss your project requirements and experience the Steel Dlink advantage in structural and steel drafting services!

Structural 2d Cad Detailing Drafting Services

For reliable moment Structural 2d Cad Detailing Drafting Services, trust Steel Dlink to provide the precision and expertise your project needs. .

Comprehensive Structural 2D CAD Drafting

Our structural 2D CAD drafting services cater to a wide range of projects, providing clear and concise blueprints for construction and manufacturing. These detailed drafts include essential specifications, dimensions, and material requirements, helping you achieve precision and efficiency in your projects.

Steel Drafting Services for Seamless Fabrication

Steel Dlink specializes in professional steel drafting services that streamline the fabrication and assembly process. Our detailed drafting ensures that every steel component is accurately represented, minimizing errors and maximizing efficiency during construction.

Why Choose Steel Dlink?

  • Precision and Accuracy: Our structural 2D CAD detailing and structural 2D CAD drafting services ensure every project is executed flawlessly.
  • Expert Team: Our experienced professionals excel in delivering high-quality steel drafting services tailored to your project’s needs.
  • Comprehensive Solutions: From detailed drafts to fabrication-ready plans, we provide end-to-end solutions for all your structural and steel drafting requirements.
  • Cost Efficiency: Accurate detailing and drafting help reduce waste, save time, and control costs effectively.

Applications of Our Services

Our structural 2D CAD detailing, structural 2D CAD drafting, and steel drafting services are essential for a variety of industries, including:

  • Commercial construction
  • Industrial facilities
  • Residential projects
  • Infrastructure developments

If you’re looking for reliable structural 2D CAD detailing, professional structural 2D CAD drafting, or precise steel drafting services, Steel Dlink is your trusted partner.
2dcaddrafting Reach out to us today to discuss your project requirements and experience the Steel Dlink advantage in structural and steel drafting services!

client1
client2
client3
client4
client5
client6
client7
client8
client9
client10
client11
client12
Testimonials

What our clients
say about us

Here’s what some of our valued clients have to say about working with us:

iori
Jim Gray TXDesignation
ioriioriioriioriiori

" I really like working with JB though, he is into international. The best part I like about this team is they are responsible and care taking towards the jobs. The best part JB speak well and understands the techy question."

iori
Jeff MartinDesignation
ioriioriioriioriiori

"He is very active on every email and phone communication, It dose give me feel relax as he is 18 hours available for us, 100% response time whatever but he let us know the ETA on every email."

iori
ioriioriioriioriiori

"I really like working with JB though, he is into international. The best part I like about this team is they are responsible and care taking towards the jobs. The best part JB speak well and understands the techy question."