Welcome To Steel D link
Welcome To Steel D link
Welcome To Steel D link

Precast Modeling Detailing Services

Get a Free Enquiry

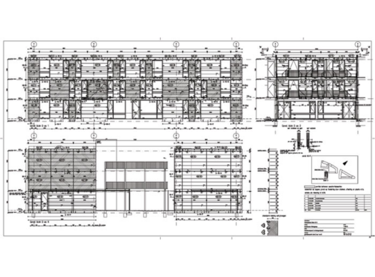
Moment connection Precast Detailing Services

Precast Modeling Detailing Services

At Steel Dlink, we specialize in offering top-tier precast detailing services, precast modeling, and precast shop drawing solutions that ensure your construction projects are efficient, accurate, and structurally sound. With years of experience in the industry, our team provides detailed, precise, and cost-effective services for both small and large-scale precast concrete projects.

What Are Precast Detailing Services?

Precast detailing services are an essential part of the precast concrete construction process. These services involve the creation of highly detailed drawings and specifications that guide the fabrication and installation of precast concrete elements. Steel Dlink excels in providing comprehensive precast detailing services, ensuring that each element of your precast structure is precisely designed and ready for seamless integration into your project.

At Steel Dlink, we specialize in offering top-tier precast detailing services, precast modeling, and precast shop drawing solutions that ensure your construction projects are efficient, accurate, and structurally sound. With years of experience in the industry, our team provides detailed, precise, and cost-effective services for both small and large-scale precast concrete projects.

What Are Precast Detailing Services?

Precast detailing services are an essential part of the precast concrete construction process. These services involve the creation of highly detailed drawings and specifications that guide the fabrication and installation of precast concrete elements. Steel Dlink excels in providing comprehensive precast detailing services, ensuring that each element of your precast structure is precisely designed and ready for seamless integration into your project.

The Role of Precast Modeling

Precast modeling is the process of creating 3D digital models of precast concrete elements before fabrication. This allows for better visualization, analysis, and coordination of the precast components, reducing errors and rework. At Steel Dlink, our precast modeling services help streamline the construction process by ensuring that every precast element fits perfectly, ensuring faster and more accurate fabrication and installation.

Precast Shop Drawings

Precast shop drawings are detailed drawings that provide a clear representation of how each precast component will be fabricated, transported, and installed. These drawings are critical for the successful execution of any precast project. At Steel Dlink, we specialize in producing precast shop drawing that are precise, easy to understand, and provide all the necessary information to guide the fabrication process.

Why Choose Steel Dlink for Precast Detailing Services?

1. Experienced Team: Our team has extensive experience in providing precast detailing services, ensuring that every project is handled with precision and attention to detail.

2. Advanced Technology: We utilize the latest software for precast modeling and detailing to ensure that all drawings and designs are accurate and up to date.

3. Customized Solutions: We understand that every project is unique, and we provide tailored solutions that meet your specific needs for precast detailing services, precast modeling, and precast shop drawings.

4. Cost-Effective and Efficient: Our services help reduce the time and costs associated with rework and fabrication errors, leading to smoother project execution.

5. Quality Assurance: We ensure that all precast shop drawings and models are compliant with industry standards, providing high-quality results every time.

Our Precast Services

• Precast Detailing Services: Comprehensive detailing of precast concrete elements, including structural elements, connections, and reinforcement.

• Precast Modeling: 3D modeling of precast components for better visualization and coordination.

• Precast Shop Drawings: Detailed shop drawings for the fabrication and installation of precast elements.

• Coordination and Clash Detection: We use advanced software to detect potential clashes in the model, ensuring smoother installation.

• Custom Precast Design: We also provide custom designs for unique precast elements that meet your project’s specific requirements.

For expert precast detailing services, precise precast modeling, and accurate precast shop drawings, trust Steel Dlink to provide the best solutions for your precast concrete projects. Our commitment to quality, efficiency, and innovation ensures that your projects are completed on time and within budget. Contact us today to discuss how we can assist with your next precast project.

Precast Modeling Detailing Services

For reliable moment connection Precast Modeling Detailing Services, trust Steel Dlink to provide the precision and expertise your project needs. .

The Role of Precast Modeling

The Role of Precast Modeling Precast modeling is the process of creating 3D digital models of precast concrete elements before fabrication. This allows for better visualization, analysis, and coordination of the precast components, reducing errors and rework. At Steel Dlink, our precast modeling services help streamline the construction process by ensuring that every precast element fits perfectly, ensuring faster and more accurate fabrication and installation.

Precast Shop Drawings

Precast shop drawings are detailed drawings that provide a clear representation of how each precast component will be fabricated, transported, and installed. These drawings are critical for the successful execution of any precast project. At Steel Dlink, we specialize in producing precast shop drawings that are precise, easy to understand, and provide all the necessary information to guide the fabrication process.

Why Choose Steel Dlink for Precast Detailing Services?

  • Experienced Team: Our team has extensive experience in providing precast detailing services, ensuring that every project is handled with precision and attention to detail.
  • Advanced Technology: We utilize the latest software for precast modeling and detailing to ensure that all drawings and designs are accurate and up to date.
  • Customized Solutions: We understand that every project is unique, and we provide tailored solutions that meet your specific needs for precast detailing services, precast modeling, and precast shop drawings.
  • Cost-Effective and Efficient: Our services help reduce the time and costs associated with rework and fabrication errors, leading to smoother project execution.
  • Quality Assurance: We ensure that all precast shop drawings and models are compliant with industry standards, providing high-quality results every time.

Our Precast Services

  • Precast Detailing Services: Comprehensive detailing of precast concrete elements, including structural elements, connections, and reinforcement.
  • Precast Modeling: 3D modeling of precast components for better visualization and coordination.
  • Precast Shop Drawings: Detailed shop drawings for the fabrication and installation of precast elements.
  • Coordination and Clash Detection: We use advanced software to detect potential clashes in the model, ensuring smoother installation.
  • Custom Precast Design: We also provide custom designs for unique precast elements that meet your project’s specific requirements.

Trust Steel Dlink to provide the best solutions for your precast concrete projects. Our commitment to quality, efficiency, and innovation ensures that your projects are completed on time and within budget. Contact us today to discuss how we can assist with your next precast project.

client1
client2
client3
client4
client5
client6
client7
client8
client9
client10
client11
client12
Testimonials

What our clients
say about us

Here’s what some of our valued clients have to say about working with us:

iori
Jim Gray TXDesignation
ioriioriioriioriiori

" I really like working with JB though, he is into international. The best part I like about this team is they are responsible and care taking towards the jobs. The best part JB speak well and understands the techy question."

iori
Jeff MartinDesignation
ioriioriioriioriiori

"He is very active on every email and phone communication, It dose give me feel relax as he is 18 hours available for us, 100% response time whatever but he let us know the ETA on every email."

iori
ioriioriioriioriiori

"I really like working with JB though, he is into international. The best part I like about this team is they are responsible and care taking towards the jobs. The best part JB speak well and understands the techy question."